Woning te koop, Sopron

Hoofdpagina » Woning te koop, Sopron » Woning te koop, Sopron

78 000 000 Ft

€214 592
Gegevens van de persoon/bedrijf welk€ de advertentie heeft gegeven

Onbekend verkoper

Bericht schrijven
Het bericht moet ten minste uit 10 karakters bestaan.
Omschrijving

Vertaalde tekst
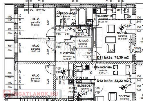
D11 Verwarming en warmwatervoorziening met warmtepomp en zonnepanelen, dus geen kosten!<br />In de buitenwijk van Sopron, in het kader van een nieuwbouwproject dat net van start gaat, is een appartement van 82 m2 met woonkamer + 3 slaapkamers en een groot balkon op de eerste verdieping te koop.<br />De bouw van het appartementencomplex bevindt zich momenteel in de beginfase, dus u kunt nog profiteren van de voordelen van deze beginfase met de woning die u zojuist heeft gekocht. Berging, garage en parkeerplaats op het terrein zijn ook beschikbaar. Hoogwaardige technologische parameters, een rendabele investering. Wij bieden ondersteuning bij het aanvragen van een lening. CSOK is beschikbaar.<br /><br />Wilt u kopen, maar beschikt u momenteel niet over de financiële middelen? Mijn collega, Melinda Szilágyi, staat tot uw beschikking met gratis, bankonafhankelijk en persoonlijk leningadvies. Heeft u interesse in pandnummer ...........164302825...... of een van de andere panden in ons aanbod? Neem dan telefonisch contact op met het vermelde nummer of met ons hoofdkantoor in Sopron, Várkerület 19. Tel: +36 99 386 607.

Originele tekst
D11Hőszivattyúval és napelemmel működő fűtés- és melegvíz ellátás, mely nem jár költséggel!!!
Sopron kertvárosi övezetében, most induló új projekt keretében eladó egy 82 m2 méretű nappali+3 szobás, nagy erkélyes, 1. emeleti lakás.
A társasház kivitelezése jelenleg a korai szakaszban tart, ezért a most megvásárolt ingatlannál még lehet élni a kezdeti stádium előnyeivel.Tároló, teremgarázs, garázs és felszíni beálló is vásárolható.Magas szintű technológiai paraméterek, megtérülő befektetés.Hitel ügyintézésben segítséget nyújtunk.CSOK  igénybe vehető.

Vásárolna, de most nincs rá  pénzügyi keret? Kolléganőm, Szilágyi Melinda díjmentes, bankfüggetlen, személyre szabott hitel ügyintézéssel áll rendelkezésére.Amennyiben a ...........164302825......számú, vagy bármely kínálatunkban szereplő ingatlan felkeltette érdeklődését, hívjon a megadott telefonszámon, vagy forduljon a KÖZPONTI irodánkhoz, Sopron, Várkerület 19.  Tel: +36 99 386 607.

Woning gegevens

1. verdieping

baksteen

Niet aangegeven

Goed

Niet aangegeven

Niet aangegeven

82 vierkante meter

Niet aangegeven

Niet aangegeven

Niet aangegeven

Niet aangegeven