Woning te koop, Győr

Hoofdpagina » Woning te koop, Győr » Woning te koop, Győr

90 667 500 Ft

€236 187
Gegevens van de persoon/bedrijf welk€ de advertentie heeft gegeven

Unger-Takács Anikó

Bericht schrijven
Het bericht moet ten minste uit 10 karakters bestaan.
Omschrijving

Vertaalde tekst

Originele tekst
Győrben, a Szitásdomb lakóparkban keresi új tulajdonosát ez a rendkívül igényesen kivitelezett nappali+2szobás, erkélyes lakás.
Igen, ez a ház Győr közigagatási területén helyezkedik el, nem Vámosszabadi!

Az ingatlan egy 2023-ban épült 23 lakásos társasház földszinti, 77,44nm-es lakása, melyhez egy, ~10 nm-es erkély kapcsolódik.
Az épületet magas színvonalú kivitelezés, modern megjelenés jellemzi. A tervezésnél fontos cél volt, hogy a közös közlekedő terek világos, jól átszellőztetett és barátságos lakókörnyezetet biztosítsanak. A tájolásnak köszönhetően a világos terek a lakásra is igazak, nagyon hangulatos otthon varázsolható belőle.
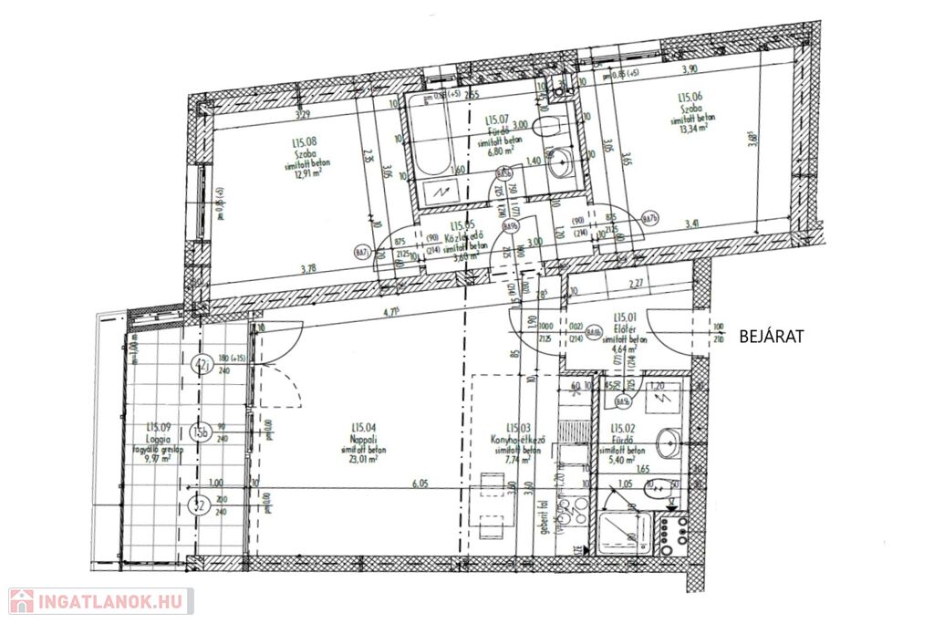
A lakás pontos elrendezése, a képek között szereplő alaprajzon látható.

Főbb műszaki adatok:
-Főfalai 30cm-es téglából épültek, 15cm-es homlokzati hőszigeteléssel kiegészítve.
-A nyílászárók műanyagok, 3 rétegű hang-és hőszigetelt üvegezéssel, redőny előkészítéssel.
-A fűtésről házközponti gázkazán gondoskodik, padlófűtéssel ellátva.

A pinceszinten mélygarázs beállók és tárolók külön vásárolhatók.
Az adásvétel ügyvédi díját és a közmű hozzájárulás költségét a vételár már tartalmazza!

Ügyfeleimnek az adásvétel során teljeskörű lebonyolítást vállalok, igény esetén díjmentes, bankfüggetlen hiteltanácsadással és ügyintézéssel segítem őket.
Már csak 4 eladó lakás van a házban, várom hívását!
(További kínálatunkat keresse a VING hivatalos weboldalán.)

Woning gegevens

Niet aangegeven

baksteen

Centrale verwarming van het huis (met individueel meetapparaat)

Structuur klaar

Niet aangegeven

Niet aangegeven

77 vierkante meter

Niet aangegeven

Niet aangegeven

Niet aangegeven

Niet aangegeven