Vertaalde tekst
                                                    
                            Originele tekst
                            Álmai otthonában karácsonyozhat! Új építésű, energiatakarékos családi ház eladó a XVIII. kerület Ferihegy városrészében
Kivételes lehetőség a piacon: eladó egy modern, új építésű, energiatakarékos családi ház Budapest XVIII. kerületének közkedvelt, csendes részén, Ferihegyen. Az ingatlan kiváló műszaki és esztétikai tartalommal, magas színvonalon kivitelezve készül, és megfelel a legújabb környezetvédelmi és energetikai elvárásoknak. A beköltözés várhatóan 2025. IV. negyedévben megtörténhet – így akár már az idei karácsonyt új otthonában ünnepelheti!
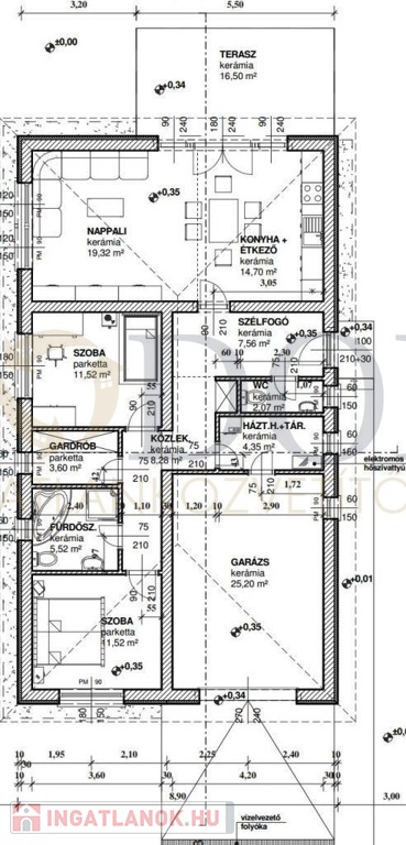
Az ingatlan 113 m²-es bruttó alapterülettel rendelkezik, melyből 88,44 m² a hasznos lakótér, 25,2 m² pedig a garázs. Az otthon elrendezése praktikus és kényelmes: tágas amerikai konyhás nappali (34,2 m²), két hálószoba, melyek száma igény esetén háromra bővíthető. A nappaliból közvetlen kijárat nyílik a 16,5 m²-es burkolt teraszra.
Műszaki jellemzők:
•	Falazat: 30 cm főfal + 10 cm homlokzati hőszigetelés
•	Tető: Terrán vagy Bramac cserép
•	Alapozás: Vasbeton sávalap
•	Nyílászárók: Műanyag, 6 légkamrás ablakok, 3 rétegű hőszigetelő üveggel
•	Fűtés: Daikin levegő-víz hőszivattyús padlófűtés
•	Hűtés: Daikin Fan-Coil rendszer elő van készítve a nappaliban és a két hálószobában
•	Napelem rendszer: előkészítve
•	Redőnyök és szúnyoghálók: elektromos vezérléshez szükséges rejtett redőnytokok és vezetékezés előkészítve, azonban redőny és szúnyogháló nem tartozék
•	Riasztórendszer: előkészítve
•	Elektronikus kapu: előkészítve
•	Garázskapu: hőszigetelt, motoros szekcionált garázsajtó
Külső kialakítás:
•	Telek mérete: 404 m² saját használatú telekrész
•	Kocsibeálló és járda: viacolorral burkolva
•	Garázs: 25,2 m², közvetlen lakáskapcsolattal
•	Terasz: 16,5 m², burkolva
Állapot és választható elemek:
A ház kulcsrakész állapotban kerül átadásra, a vételár tartalmazza a választható burkolatokat, szanitereket és beltéri ajtókat, így az új tulajdonos saját ízlésének megfelelően alakíthatja ki az enteriőrt.
Ez a ház nemcsak esztétikus, hanem korszerű és fenntartható otthon is, mely hosszú távon alacsony fenntartási költségeket kínál. 
A környék rendezett, családbarát, mégis kiváló közlekedési kapcsolatokkal és infrastrukturális ellátottsággal rendelkezik. 
Ne hagyja ki ezt az alkalmat – költözzön be még karácsony előtt egy vadonatúj otthonba!
További információért, műszaki dokumentációért és helyszíni megtekintésért keressen bizalommal!
Irodánk díjmentes hitelügyintézéssel, CSOK Plusz tanácsadással és banki partneri háttérrel segíti Önt a vásárlás minden lépésében!
                         
113 vierkante meter
404 vierkante meter
Uitstekend
Eengezinswoning
baksteen
Niet aangegeven
Niet aangegeven
Met het meest moderne comfort
Nieuw gebouwd
Niet aangegeven
Niet aangegeven
Niet aangegeven
Zoek eenvudig naar huis, woning, kantoor, garage, perceel of elk willekeurig onroerend goed in onze database.
De Vastgoed.hu lid van de Real Estate Group.
Onroerende goederen te koop in Hongarije - Vastgoed.hu © 2025 Alle rechten voorbehouden