Huis te koop, district II van Boedapest

Hoofdpagina » Huis te koop, district II van Boedapest » Huis te koop, district II van Boedapest

399 800 000 Ft

€1 041 471
Gegevens van de persoon/bedrijf welk€ de advertentie heeft gegeven

Lakatos Mária

Bericht schrijven
Het bericht moet ten minste uit 10 karakters bestaan.
Omschrijving

Vertaalde tekst

Originele tekst

Pesthidegkúton örökpanorámás lakások eladók!



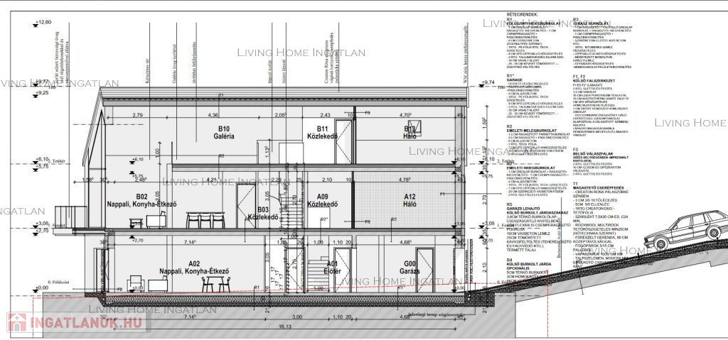
Tájvédelmi terület szomszédságában, csendes utcában örökpanorámás, déli tájolású, új építésű ingatlan mindkét lakása eladó. Az épület jelenleg 60%-os készültségű. A belső terek, a beosztás még alakítható, a burkolatokat a vevő saját ízlése szerint még kiválaszthatja,



Az egyik lakás 158 nm, a másik 153 nm, mindkettőhöz tartozik kizárólagos kerthasználat, valamint garázs. Az ár kulcsrakész állapotra értendő.




  • fűtés: levegő-hőszivattyús rendszer,

  • padló- és mennyezet hűtés,

  • Hörmann garázskapu,

  • klíma, kiépített kaputelefon,

  • egyedi beltéri nyílászárók, üvegkorlát.



Részletes dokumentációt, tervet, műszaki tartalmat kérésre küldök.



A lokáció kedvező: közelben Francia iskola, Német iskola, Amerikai, Spanyol iskola, sportolási lehetőség, uszoda.



Az alaprajz és az adatok tájékoztató jellegűek.



English:



Apartments with everlasting panoramic views for sale in Pesthidegkút!
In a quiet street, next to a landscape conservation area, both apartments of a new-build property with panoramic views, south-facing for sale. The building is currently 60% complete. The interiors and the layout can be adapted, the tiling can be chosen according to the taste of the buyer,
One apartment is 158 sqm, the other 153 sqm, both with exclusive use of garden and garage. The price is for turnkey condition.
- Heating: air-source heat pump system,
- underfloor and ceiling cooling,
- Hörmann garage doors,
- air conditioning, built-in intercom,
- individual interior doors and windows, glass barrier.
Detailed documentation, plans, technical content on request.
The location is favourable: nearby French school, German school, American school, Spanish school, sports facilities, swimming pool.



The floor plan and data are for information only.


Huis gegevens

311 vierkante meter

800 vierkante meter

Niet aangegeven

Eengezinswoning

baksteen

Andere

Niet aangegeven

Dubbele comfort

Nieuw gebouwd

Met panorama

Niet aangegeven

Niet aangegeven