Huis te koop, Veszprém

Hoofdpagina » Huis te koop, Veszprém » Huis te koop, Veszprém

120 000 000 Ft

€314 325
Gegevens van de persoon/bedrijf welk€ de advertentie heeft gegeven

Nívó Ingatlanforgalmi Szakértői Iroda

Bericht schrijven
Het bericht moet ten minste uit 10 karakters bestaan.
Omschrijving

Vertaalde tekst

Originele tekst
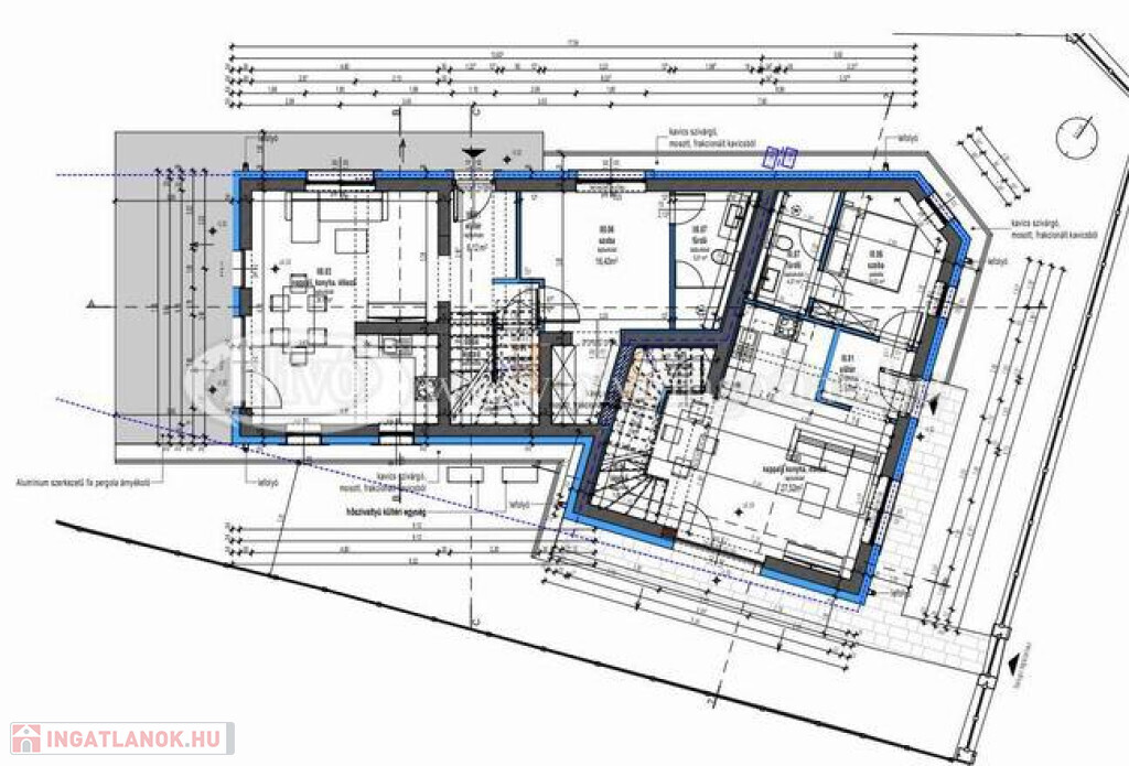
Veszprémben, az Újtelepen, csendes, kertvárosias környezetben, de mégis a belvároshoz közel, új építésű, két szintes, 97 m2-es ikerházrész (külön helyrajzi számon), saját kerttel, udvari beállóval, kulcsrakészen eladó.

Az ingatlan befejezésének legkésőbbi időpontja: 2026. június vége.

Főbb műszaki paraméterek:
- 30-as tégla falazat,
- cseréptető,
- 15 cm homlokzati szigetelés,
- hőszivattyús fűtő- és hűtőrendszer (használati meleg vizet is előállítja),
- padlófűtés,
- 3 rétegű műanyag nyílászárók.


Az épület földszintjén amerikai konyhás nappali-étkező, fürdőszoba és egy hálószoba kerül kialakításra. A felső szinten két hálószoba és egy fürdőszoba . A lakáshoz egy 10 m2-es terasz, egy udvari beálló illetve egy kb. 200 m2-es saját kert tartozik.

Az ár kulcsrakész állapotra vonatkozik.



Az ingatlan megtekintése irodánkkal előre egyeztetett időpontban történik. Szívesen állunk rendelkezésre!

Keresünk és kínálunk eladó és bérbeadó ingatlanokat, albérleteket Veszprém, Balaton, Bakony, Káli-medence régióban.
Ügyeleti telefonszámunk: .
A Nívó Ingatlanforgalmi Szakértői Iroda teljes eladó és bérbeadó ingatlan és albérlet kínálatát megtekintheti a oldalunkon.

Irodai azonosító kód: N4880 Nívó ingatlan: N4880

Huis gegevens

97 vierkante meter

200 vierkante meter

Niet aangegeven

Twee huizen onder één kap

Niet aangegeven

Andere

Niet aangegeven

Niet aangegeven!

Nieuw gebouwd

Niet aangegeven

2 verdiepingen

Niet aangegeven