Huis te koop, Siófok

Hoofdpagina » Huis te koop, Siófok » Huis te koop, Siófok

224 900 000 Ft

€589 654
Gegevens van de persoon/bedrijf welk€ de advertentie heeft gegeven

Vastag Ákos

Bericht schrijven
Het bericht moet ten minste uit 10 karakters bestaan.
Omschrijving

Vertaalde tekst
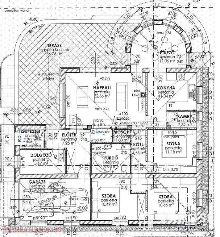
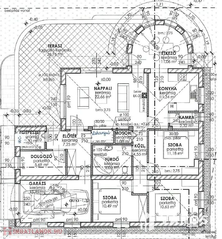
Te koop in Siófok, in de populaire wijk Sóstó, is een gloednieuwe gezinswoning met uitzonderlijke kenmerken! Deze woning van 150 m² is een ideale keuze voor wie op zoek is naar een huis in een rustige, maar toch goed bereikbare omgeving. De woning ligt op een paar honderd meter van het Balatonmeer in een nieuw woonpark, in een rustige, kindvriendelijke buurt. Het Gouden Strand van Siófok en het gratis strand van Szabadisóstó liggen op een paar minuten loopafstand. De M7-snelweg is slechts 1,5 km verderop. Dit is een doordachte, uiterst praktische woning. De eigenaar heeft de woning zelf gebouwd. De woning is gebouwd in 2017 op een perceel van 609 m², met 30 cm Ytong-metselwerk en 10 cm EPS-isolatie. De verwarming wordt verzorgd door een gasgestookte cv-ketel met vloerverwarming in de gehele woning. De energiekosten zijn uitzonderlijk laag, omdat er ook een zonnepanelensysteem en een batterijopslag zijn geïnstalleerd, waardoor de energierekening constant positief is. De externe thermische isolatie, vloerverwarming, zonnepanelen, moderne airconditioning en driefasenstroom dragen allemaal bij aan de moderne, duurzame werking van het huis. De ramen en deuren zijn van kunststof en voorzien van rolluiken en horren. Het huis heeft drie slaapkamers, een ruime woonkamer, eetkamer, keuken (met een aangrenzende bijkeuken), een badkamer, een aparte douche, een technische ruimte (met toilet), een wasruimte en een verwarmde garage. In de kelder is een extra ruimte van 11,18 m² gecreëerd. De smaakvol ingerichte keuken is gemaakt van hoogwaardige materialen en biedt daardoor de perfecte ruimte om te koken. De woonkamer en eetkamer bieden een prachtig uitzicht op het Balatonmeer, waarvan de sfeer en het comfort verder worden versterkt door de open haard en airconditioning. De elektrische garagedeur en de mogelijkheid om op eigen terrein te parkeren dragen bij aan het gemak van de bewoners. Een alarmsysteem met bediening op afstand zorgt voor de veiligheid. Het huis is aangesloten op het internet met de modernste glasvezelkabel, waardoor een goede internetverbinding gegarandeerd is, voor werk of ontspanning. Een van de hoogtepunten van de woning is de fraai aangelegde, rijk beplante tuin, waar niet alleen sierplanten, maar ook talloze bomen, struiken en fruitbomen te vinden zijn. De geboorde waterput draagt verder bij aan het efficiënte onderhoud van de tuin. Het huis is tevens verbonden met twee terrassen, beide met een panoramisch uitzicht op het Balatonmeer, die een uitstekende plek bieden om te genieten van een kopje koffie, te ontspannen of gasten te ontvangen. Een van de terrassen is op het westen gericht en gedeeltelijk overdekt, het andere is op het oosten gericht, zodat er op elk moment van de dag een gezellig plekje te vinden is om te relaxen. Deze woning is een ware zeldzaamheid in een van de meest gewilde delen van Siófok - met een panorama op het Balatonmeer, een prachtige tuin en een uitstekende technische afwerking! Neem voor meer informatie en een bezichtiging gerust contact met ons op! (Voor meer foto's en informatie kunt u bellen!)

Originele tekst
Eladó Siófokon, a népszerű Sóstó városrészen egy kivételes adottságokkal rendelkező újszerű családi ház! Ez a 150 m²-es otthon ideális választás mindazok számára, akik csendes, mégis jól megközelíthető környezetben keresnek házat. Az ingatlan a Balatontól pár száz méterre található egy új lakóparkban, csendes, családbarát környezetben. A siófoki Aranypart és a Szabadisóstói szabadstrand pár perc sétával elérhető. Az M7-es autópálya felhajtó mindössze 1,5 km.

Precízen átgondolt, rendkívül praktikusan megtervezett házról van szó. A tulajdonos saját magának építette. Az ingatlan 2017-ben épült egy 609 m²-es telken, 30 cm Ytong falazattal és 10 cm EPS szigeteléssel. A fűtést gázcirkó kazán biztosítja padlófűtéses hőleadással az egész ház területén. Kiemelkedően alacsony a rezsi, hiszen napelemrendszer és akkumulátoros energiatároló is ki lett építve, így a villanyszámla folyamatosan pluszos. A külső hőszigetelés, a padlófűtés, a napelemrendszer, a korszerű klíma és a háromfázisú áram mind hozzájárulnak a modern, fenntartható működéshez. A nyílászárók műanyagok, redőnnyel és szúnyoghálóval felszereltek.

A ház három hálószobával, egy tágas nappalival, étkezővel, konyhával ( a konyhához kapcsolódik egy kamra is), egy fürdőszobával, egy külön tusolóval, gépészeti helységgel (melyben helyet kapott még egy wc), mosókonyhával, és fűtött garázzsal rendelkezik. A pincében kialakításra került egy további 11,18 m²-es szoba is. Az igényesen kialakított konyha prémium anyagok felhasználásával készült, így tökéletes teret kínál a főzéshez. A nappaliból és az étkezőből csodálatos kilátás nyílik a Balatonra, melynek hangulatát és komfortját tovább növeli a kandalló és a klíma.

Az elektromos garázskapu és az udvari gépjárműbeálló lehetőség is a lakók kényelmét szolgálja. A biztonságról riasztórendszer gondoskodik, kivonuló szolgálattal. A házba a legmodernebb optikai kábellel van bekötve az internet, így garantáltan jó internetkapcsolattal rendelkezik, amennyiben a munka vagy a szórakozás azt megkívánja.

Az ingatlan egyik kiemelt értéke a parkosított, gazdagon beültetett kert, ahol nemcsak dísznövények, hanem számos fa, bokor és termő gyümölcsfa is található. A fúrt kút csak tovább növeli a kert fenntartásának hatékonyságát. A házhoz 2 terasz is kapcsolódik, mindkettő balatoni panorámás, melyek kiváló helyszínt biztosítanak kávézáshoz, pihenéshez vagy vendégfogadáshoz. Az egyik terasz nyugati és részben fedett, a másik pedig keleti fekvésű, így bármelyik napszakban találhatunk magunknak egy hangulatos helyet a kikapcsolódásra.

Ez a ház valódi ritkaság Siófok egyik legkedveltebb városrészében – balatoni panorámával, gyönyörű kerttel és kimagasló műszaki tartalommal! További információért és megtekintésért keressen bizalommal!
(További képekért és információkért kérem hívjon!)

Huis gegevens

150 vierkante meter

609 vierkante meter

Uitstekend

Eengezinswoning

baksteen

Circulatieketel

Niet aangegeven

Niet aangegeven!

Niet aangegeven!

Niet aangegeven

Niet aangegeven

Niet aangegeven