Vertaalde tekst
                                                    
                            Originele tekst
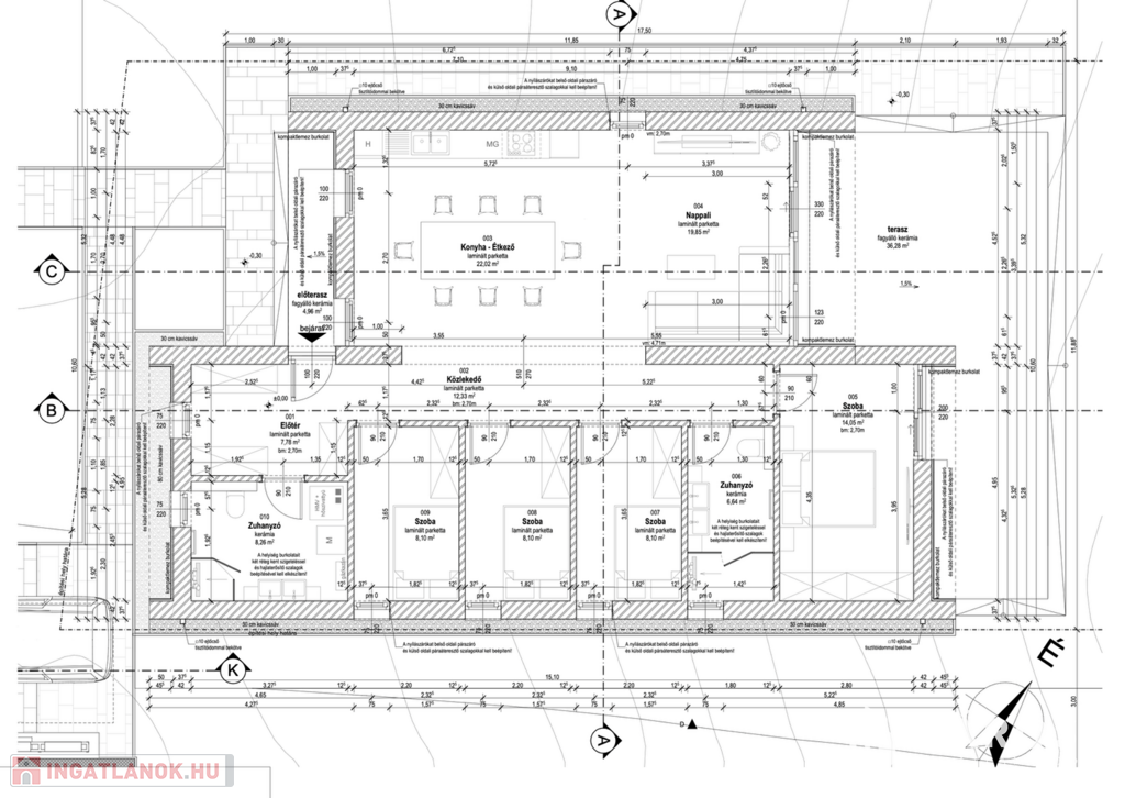
                            Siófok-Sóstó, új építésű lakóparkjában a Csenge utcában eladó ez az egyedi megjelenésű önálló családi ház, 630 m²-es telekkel. Az épület teljesen földszintes, nettó 115 m²-es a lakótér, amelyet egy tágas előtér (7 m²), 4 hálószoba, 2 fürdőszoba és egy amerikai konyhás nappali (40 m²) alkot.
A nappali és a konyha belmagassága teszi különlegessé a ház stílusát, amely az udvar felőli oldalon teljes síkban nyílászárót kapott, így igazán lenyűgözővé téve a kapcsolatot a kerttel és a 38 m²-es terasszal.
A falak 37,5 cm-es Ytong lambda falazóelemből készültek, amely külső hőszigetelés nélkül is biztosítja a megfelelő hőszigetelést, így az épület nem csak energiatakarékos, de megfelelően “lélegzik” is. A fűtés a teljes lakótérben padlófűtés, amely kétféle módon is használható, gázkazánnal és hőszivattyúval egyaránt.
Az ingatlan jelenleg építés alatt áll, 2025 év végi átadással fog elkészülni.
Amennyiben egy igazán modern és hangulatos családi házat keres egy kiváló helyen, akkor ezt mindenképp érdemes megtekintenie. Amennyiben idejében jelentkezik, a végső arculat, az anyagok kiválasztása, a színek és a belső tér stílusának meghatározása az épület teljes készültségét megelőzően a vevői igények szerint is alakítható.
További információkért kérem hívjon akár hétvégén is!
(További képekért és információkért kérem hívjon!)                        
135 vierkante meter
630 vierkante meter
Uitstekend
Eengezinswoning
baksteen
Niet aangegeven
Niet aangegeven
Niet aangegeven!
Niet aangegeven!
Niet aangegeven
Niet aangegeven
Niet aangegeven
Zoek eenvudig naar huis, woning, kantoor, garage, perceel of elk willekeurig onroerend goed in onze database.
De Vastgoed.hu lid van de Real Estate Group.
Onroerende goederen te koop in Hongarije - Vastgoed.hu © 2025 Alle rechten voorbehouden