Huis te koop, Gyömrő

Hoofdpagina » Huis te koop, Gyömrő » Huis te koop, Gyömrő

109 900 000 Ft

€285 351
Gegevens van de persoon/bedrijf welk€ de advertentie heeft gegeven

Fodor Norbert

Bericht schrijven
Het bericht moet ten minste uit 10 karakters bestaan.
Omschrijving

Vertaalde tekst

Originele tekst
Gyömrőn a kastélydomb lakóparkban csendes, nyugodt környezetben, eladásra kínálok egy nappali + 2 hálószobás, Gardróbos, teraszos, új építésű, hőszivattyús ikerházi lakást, amely a korszerű technológia és a prémium kivitelezés tökéletes ötvözete.


A lakások 2 x Porotherm 30-as téglafallal kapcsolódik közte 5 cm-es szigeteléssel, így a lakások közt az áthallás kizárt!!!

Az építkezés folyamatosan halad, így ön végig követheti épülő ingatlanja építését, referenciaházak a közelben megtekinthetők.

Ez az otthon a legmodernebb technológiával épült, levegő-víz hőszivattyúval, amely garantálja az alacsony fenntartási költségeket, padlófűtéssel maximalizálja a komfortérzetet.

A lakások élhető, világos terekkel rendelkeznek. Az amerikai konyhás nappali mellett kettő hálószoba található, 1 fürdőszoba Wc-vel, külön Wc, valamint egy praktikus kamra is helyet kapott a házban.

Az ikerház egymás mögött helyezkedik el egy 1290 m²-es telken, amely kerítéssel megosztott, így mindkét lakáshoz saját, privát kert tartozik.

A lakások Társasházi alapító okirattal kerülnek átadásra.

A hirdetésben feltüntetett alaprajz a leendő vásárló igényei szerint módosítható: akár három szobás, nappali-konyha elrendezés is kialakítható a kérésére!


Az ingatlan paraméterei:
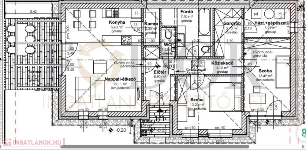
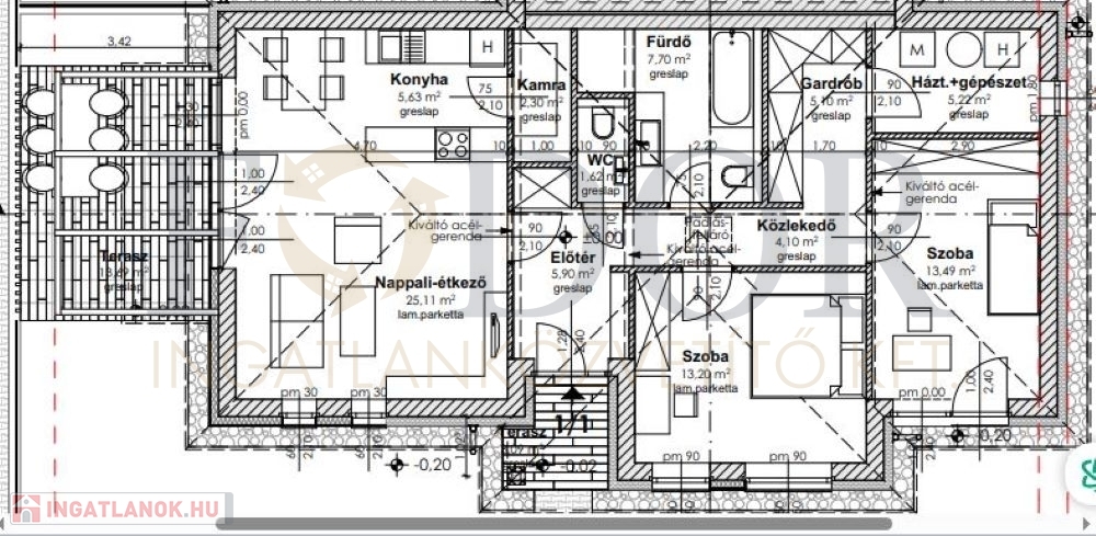
1. lakás (utcafront felőli) Elrendezését lásd az alaprajzon!!!
• Alapterület: 89.5 m²
• Telekterület: 155 m²
• Terasz: 18.49 m²
• Vételár: 104.900.000 MFt

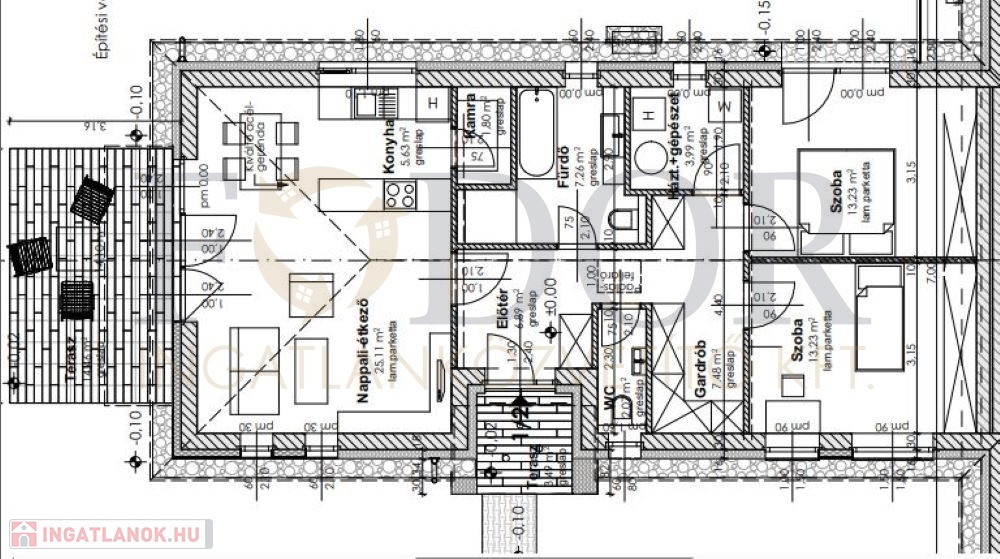
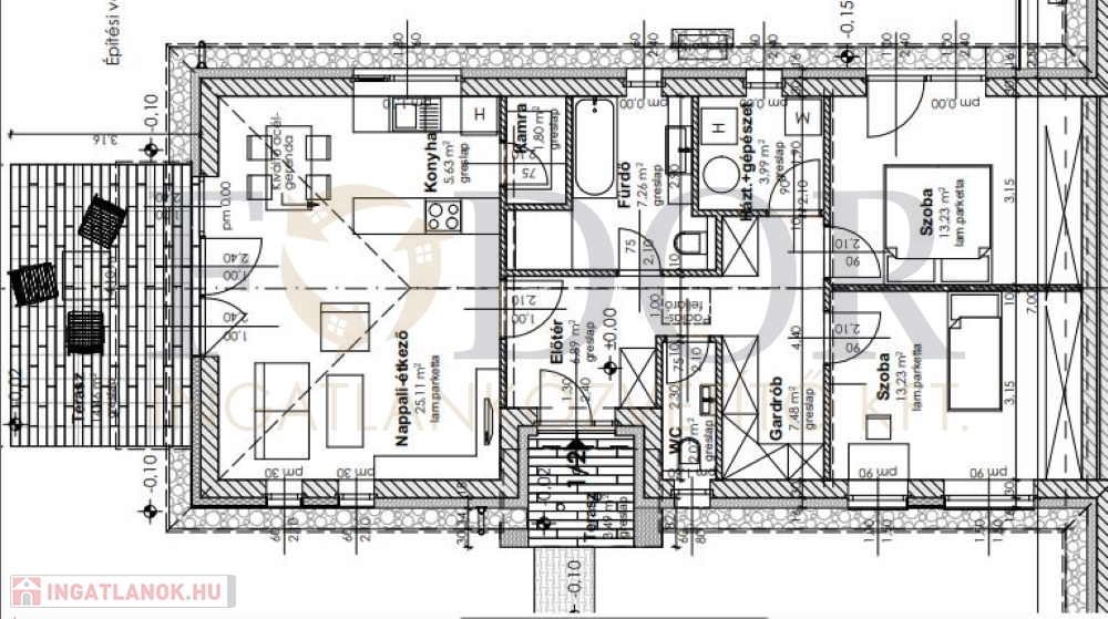
Az ingatlan paraméterei:
2. lakás (udvar felőli) Elrendezését lásd az alaprajzon!!!
• Alapterület: 86.7 m²
• Telekterület: 262 m²
• Terasz: 18.49 m²
• Vételár: 109.900.000 MFt



Műszaki tartalom:
• A fűtés és a meleg víz biztosítása Midea Concept 8 KW-os levegő-víz hőszivattyúval (beépített 190 literes HMV tartállyal) történik.

• 30 cm-as főfalak 16 cm szigeteléssel
• Hőszigetelt, fehér, 3 rétegű üvegezésű nyílászárók elektromos redőnnyel
• Vasbeton sávalap, fafödém 30 cm-es kőzetgyapot szigeteléssel.

További extrák:
• Elektromos kapu + motor az árban
• Kerítéssel leválasztott, privát telekterület
• Külső ablakpárkányok mészkőből készülnek


Elhelyezkedés és környezet:
Az ingatlan egy csendes mellékutcában található, ugyanakkor minden fontos kiszolgáló egység – iskola, óvoda, piac és tömegközlekedés – pár perc sétára elérhető.

Az ingatlan kulcsrakész állapotban kerül átadásra.

Várható átadás: 2026 2.-3. negyedév.

Megbízható, precíz kivitelező által épített, exkluzív otthon, amely minden igényt kielégít.

Hívjon most a részletekért, és tekintse meg személyesen!

TANÁCSADÁSSAL, SZÁMOS BANK AJÁNLATÁVAL ÉS AZ ÚJ CSOK PLUSZ FOLYÓSÍTÁSÁVAL VÁRJA ÜGYFELEIT!

Huis gegevens

87 vierkante meter

155 vierkante meter

Uitstekend

Twee huizen onder één kap

baksteen

Niet aangegeven

Niet aangegeven

Met het meest moderne comfort

Nieuw gebouwd

Niet aangegeven

Niet aangegeven

Niet aangegeven